Osservatorio Astronomico di Brera
Spazi disponibili per eventi privati
Sede di Merate

Veduta di una parte del parco della sede di Merate dell'Osservatorio Astronomico di Brera, con la cupola del telescopio Zeiss e due cupolini di strumenti più piccoli

La sede di Merate è stata fondata nel 1925 come succursale osservativa dell'Osservatorio Astronomico di Brera; è situata in un grande parco (ex Villa San Rocco) su una collina a circa un chilometro a nord-est del centro di Merate, a 30 km a nord-est di Milano e 15 km a sud di Lecco. Nel parco sono situati gli edifici che ospitano i diversi servizi dell'Osservatorio (uffici amministrativi, studi dei ricercatori, laboratori, cupole osservative, sala conferenze, ecc.).

Gli spazi disponibili a essere locati temporaneamente per eventi privati all'interno della sede di Merate sono:

Il parco

Il parco dell'Osservatorio è una vasta estensione di terreno, in parte ricoperto da prati, in parte alberato. Trattandosi di zona collinare, parte del terreno è in pendenza, ma ci sono anche zone pianeggianti relativamente ampie, soprattutto nella parte più alta del colle, dove si trovano le cupole osservative.

Planimetria del parco della sede di Merate dell'Osservatorio

Planimetria del parco dell'Osservatorio a Merate. Le aree più adatte per eventi all'aperto sono quella compresa tra le cupole Zeiss (I) e Ruths (H) e il prato tra la palazzina degli uffici (B) e l'edificio D (che comprende anche la sala POE). I prati a nord e nord-est degli edifici D ed E sono scoscesi e difficilmente agibili.

Zona pianeggiante a est della cupola del riflettore Zeiss

Una zona erbosa pianeggiante a est della cupola del telescopio Zeiss.

Zona pianeggiante parzialmente alberata a sud-ovest della cupola del telescopio Zeiss

Una zona pianeggiante parzialmente alberata a sud-ovest della cupola del telescopio Zeiss.

Il cedro del Libano nel parco dell'Osservatorio

Un meraviglioso cedro del Libano dell'età di circa 170 anni, uno dei più grandi in Lombardia, si eleva sul pendio che si affaccia sull'edificio che ospita i laboratori ottici.

La cupola del riflettore Zeiss

Il riflettore Zeiss è stato il primo telescopio installato a Merate nel 1927, appena dopo la fondazione della sede; come obiettivo monta uno specchio di 102 cm di diametro, che all'epoca era il più grande in Italia. Attualmente il telescopio non è più utilizzato per la ricerca astronomica, ma solo per esercitazioni od osservazioni rivolte al pubblico.

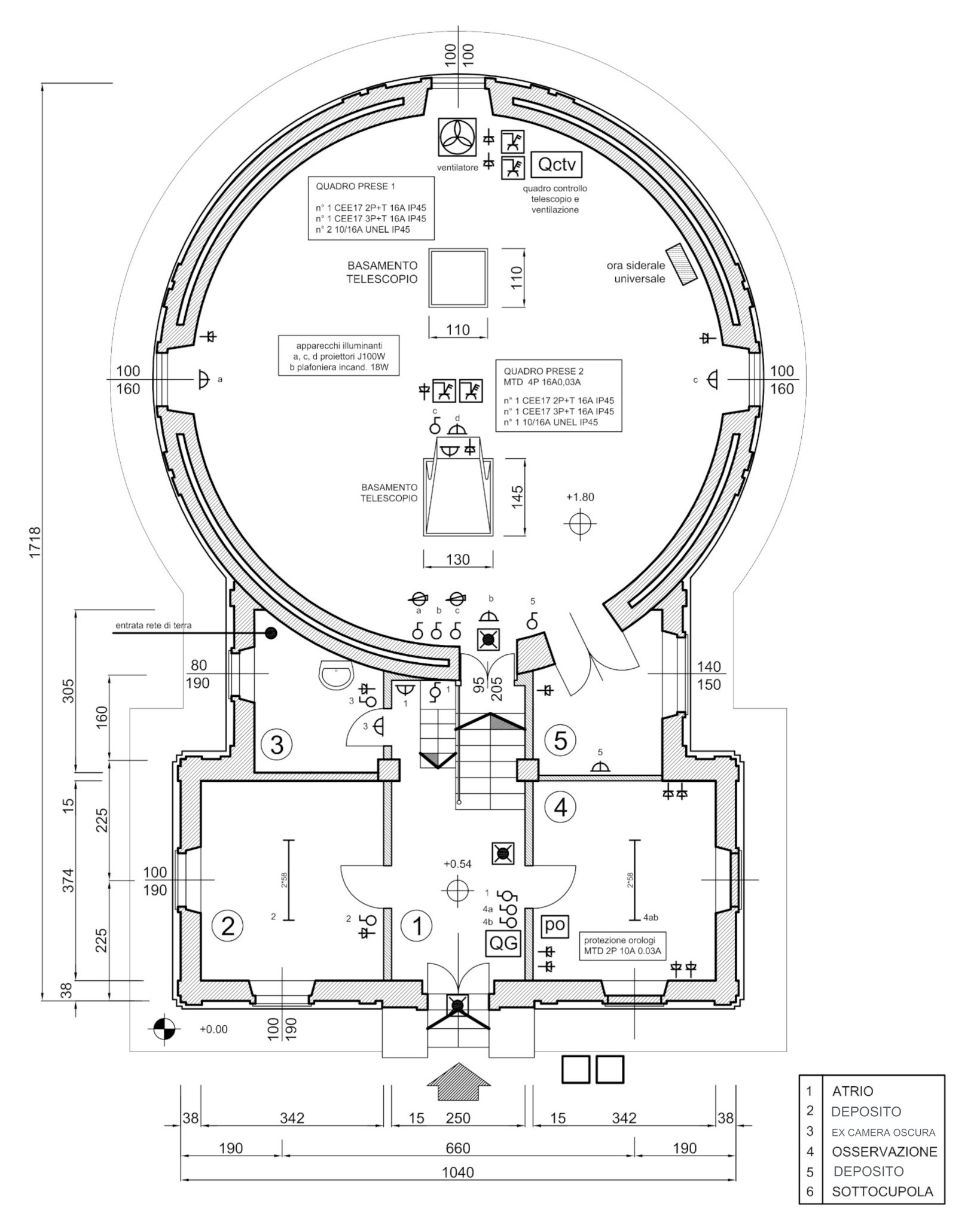
Planimetria della cupola del riflettore Zeiss

Planimetria della cupola del riflettore Zeiss.

Capienza: 35 persone.

La cupola del riflettore Zeiss

Veduta esterna della cupola del riflettore Zeiss.

Interno della cupola del riflettore Zeiss

Il riflettore Zeiss all'interno della sua cupola.

Vedi anche la panoramica a 360° dell'interno della cupola.

La cupola del riflettore Ruths

Il riflettore Ruths è un telescopio di costruzione interamente italiana, installato a Merate nel 1969. Lo specchio originario aveva un diametro di 137 cm ed era costruito in alluminio massiccio, una soluzione avveniristica per l'epoca; lo specchio attualmente montato è una copia in vetro del diametro di 134 cm, costruita nel 1995.

Planimetria della cupola del riflettore Ruths

Planimetria della cupola del riflettore Ruths.

Capienza: 35 persone.

La cupola del riflettore Ruths

Veduta esterna della cupola del riflettore Ruths.

Interno della cupola del riflettore Ruths

Il riflettore Ruths all'interno della sua cupola.

Vedi anche la panoramica a 360° dell'interno della cupola.

La sala conferenze POE

La sede di Merate ha una sala per conferenze che di solito è usata dal POE (Public Outreach and Education) per attività di divulgazione per le scuole e per il pubblico, ma che all'occorrenza è utilizzabile anche per attività diverse. La sala è dotata di videoproiettore e di impianto di amplificazione della voce.

Veduta esterna della sala POE

Planimetria della sala per conferenze del POE. La sala è dotata di un atrio (con banco di accettazione del pubblico), di un bagno e di un locale di servizio, utilizzabile come ripostiglio.

Veduta esterna della sala POE

L'edificio che ospita la sala per conferenze del POE (la parte a sinistra, al piano terreno).

Interno della sala POE

Veduta dell'interno della sala per conferenze del POE.

Superficie: 60 mq.

Capienza: 55 posti a sedere.

Interno della sala POE

Altra veduta dell'interno della sala per conferenze del POE.