Osservatorio Astronomico di Brera
Spazi disponibili per eventi pubblici

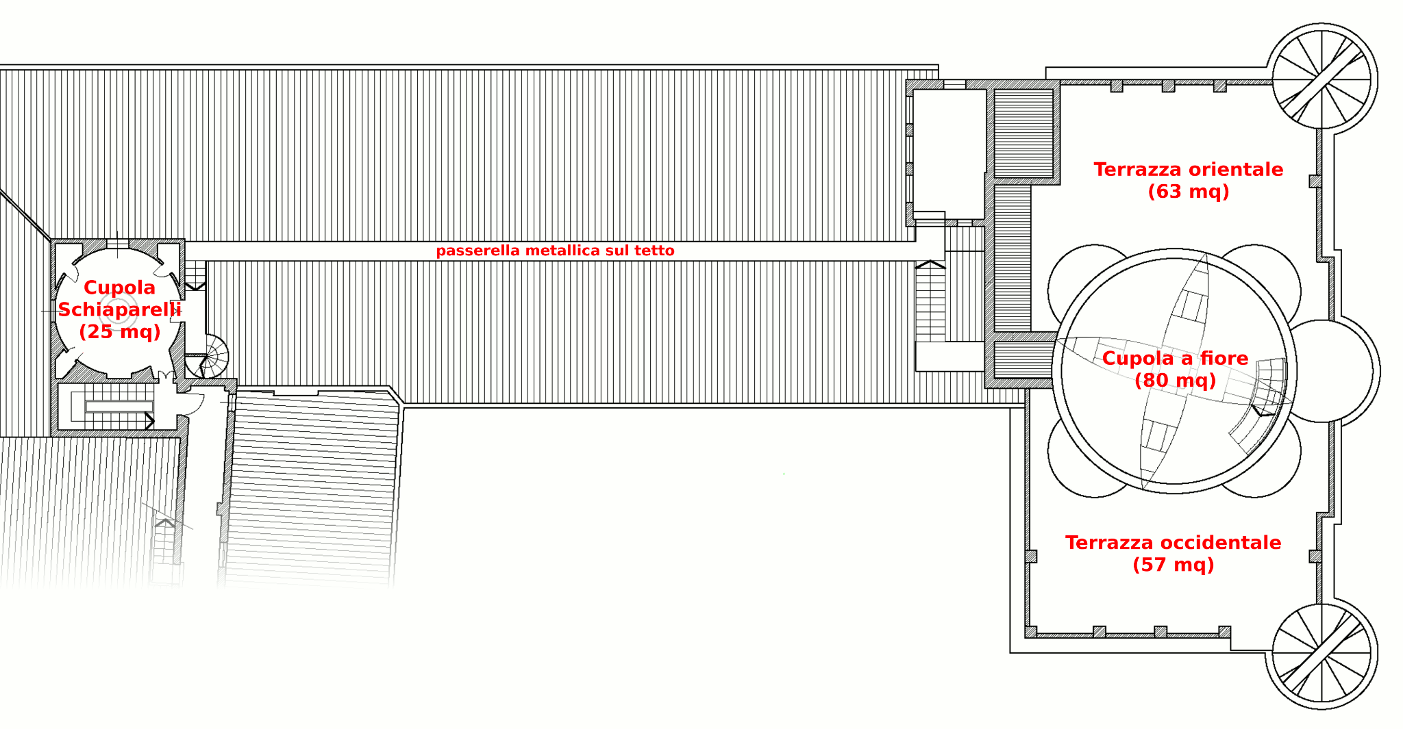
Quinto piano

In questa pagina sono riportate informazioni essenziali sugli spazi disponibili per conferenze e altri eventi pubblici al quinto piano dell'Osservatorio Astronomico di Brera, e cioè: la cupola a fiore e le due terrazze adiacenti.

Veduta dei tetti dell'Osservatorio, con la cupola a fiore (a sinistra) e la cupola Schiaparelli (a destra)

La disposizione degli spazi è illustrata nella seguente planimetria:

Planimetria parziale del quinto piano dell'Osservatorio Astronomico di Brera

A questo livello si trova anche la cupola Schiaparelli, utilizzabile per esposizioni visitabili da piccoli gruppi (composti da non più di sette visitatori per volta) o per servizi fotografici e video.

Cupola a fiore

Veduta esterna della cupola a fiore dell'Osservatorio Astronomico di Brera

La cosiddetta "cupola a fiore" sorge nel luogo in cui si trovava la torretta osservativa a pianta ottagonale, prima struttura osservativa dell'Osservatorio fatta costruire da Ruggiero Boscovich nel 1764-65. Nel 1885 la torretta di Boscovich fu demolita da Giovanni Schiaparelli per far posto alla nuova cupola in cui fu installato il grande telescopio equatoriale Merz-Repsold (un rifrattore di 49 cm di diametro e 7 m di lunghezza focale). La cupola di Schiaparelli fu seriamente danneggiata nel bombardamento aereo dell'8 agosto 1943; la costruzione attuale risale al 1957 e utilizza la base in muratura della precedente cupola, con una nuova copertura formata da quattro pannelli di metallo che si aprivano verso l'esterno (da cui il nome di "cupola a fiore"). Fino al 1970 la cupola ospitava gli strumenti dei passaggi che servivano alla determinazione del tempo astronomico in base alle osservazioni dei transiti stellari.

Veduta interna del piano inferiore della cupola a fiore dell'Osservatorio Astronomico di Brera

Nel 1995 la cupola a fiore è stata ristrutturata, trasformando il piano inferiore in una sala per conferenze dotata di proiettore e relativo schermo motorizzato. Nella ristrutturazione l'architetto Adalberto Caccia Dominioni ha avuto cura di conservare quanto più possibile la struttura originaria della cupola osservativa, in particolare la muratura esterna e la copertura metallica.

Dimensioni: diametro 10.1 m

Capienza: 48 posti (a sedere)

Veduta interna del piano superiore della cupola a fiore dell'Osservatorio Astronomico di Brera

Attraverso una scala posta in fondo al piano inferiore della cupola si accede al piano superiore, dove originariamente erano collocati gli strumenti di osservazione, che è stato trasformato in un'area utilizzabile come eventuale spazio espositivo ulteriore o di appoggio.

Veduta del soffitto del piano superiore della cupola a fiore dell'Osservatorio Astronomico di Brera

La ristrutturazione ha conservato la copertura metallica originale della cupola, inserendo solamente quattro fasce di legno dotate di lucernari nello spazio vuoto tra un pannello e l'altro.

Veduta in direzione nord da una delle finestre del piano superiore della cupola a fiore dell'Osservatorio Astronomico di Brera

Dalle quattro aperture lungo il perimetro del locale si gode di una vista dall'alto su Milano: in direzione nord, la cupola Schiaparelli e i nuovi grattacieli della zona di Porta Garibaldi; in direzione sud, il centro della città con il Duomo.

N.B.: Al momento non è permesso l'accesso del pubblico al piano superiore della cupola a fiore, in attesa di un intervento di ristrutturazione del locale. Il piano inferiore con la sala per conferenze è invece pienamente agibile.

Vedi anche: vedute panoramiche delle cupole dell'Osservatorio di Brera (tasto "Cupola a fiore").

Terrazze

Terrazza orientale adiacente alla cupola a fiore dell'Osservatorio Astronomico di Brera

Due porte situate ai lati della sala inferiore della cupola a fiore danno accesso a due terrazze, da cui si gode di una suggestiva e assai privilegiata vista sulla città di Milano e sul sottostante Orto Botanico.

La terrazza orientale ha una superficie di 63 mq.

Terrazza occidentale adiacente alla cupola a fiore dell'Osservatorio Astronomico di Brera

La terrazza occidentale ha una superficie di 57 mq.

Veduta della facciata sud dell'Osservatorio Astronomico di Brera

La cupola a fiore e le terrazze adiacenti sono situate alla sommità della facciata sud del Palazzo di Brera e sono chiaramente visibili dall'Orto Botanico.

Cupola Schiaparelli

Veduta esterna della cupola Schiaparelli dell'Osservatorio Astronomico di Brera

La cupola Schiaparelli si trova al quinto piano dell'Osservatorio, circa allo stesso livello della cupola a fiore.

La cupola Schiaparelli è collegata alla cupola a fiore attraverso una passerella metallica che passa sopra il tetto del palazzo.

Planimetria parziale del quinto piano dell'Osservatorio Astronomico di Brera

Veduta interna della cupola Schiaparelli dell'Osservatorio Astronomico di Brera

L'interno della cupola Schiaparelli è un piccolo locale a pianta circolare che ospita il rifrattore Merz da 21 cm di apertura e 3.2 m di lunghezza focale, lo storico telescopio (installato nel 1875) con cui Giovanni Schiaparelli fece le sue prime osservazioni del pianeta Marte. Il telescopio e la cupola rotante sono stati restaurati nel 1999 e sono perfettamente funzionanti. Per la sua conformazione la cupola Schiaparelli si presta a ospitare eventi per piccoli gruppi composti da non più di sette visitatori per volta, o per servizi fotografici e video.

Dimensioni: diametro 5.6 m

Capienza: 7 persone + 1 accompagnatore

Vedi anche: vedute panoramiche delle cupole dell'Osservatorio di Brera (tasto "Cupola Schiaparelli").

N.B.: Per informazioni sulle modalità di prenotazione rivolgersi a: eventi.oabr@inaf.it